IMMO KUB
KUB 27
2 adultes + 2 enfants
Studio plein pied
À partir de 43 000 € TTC
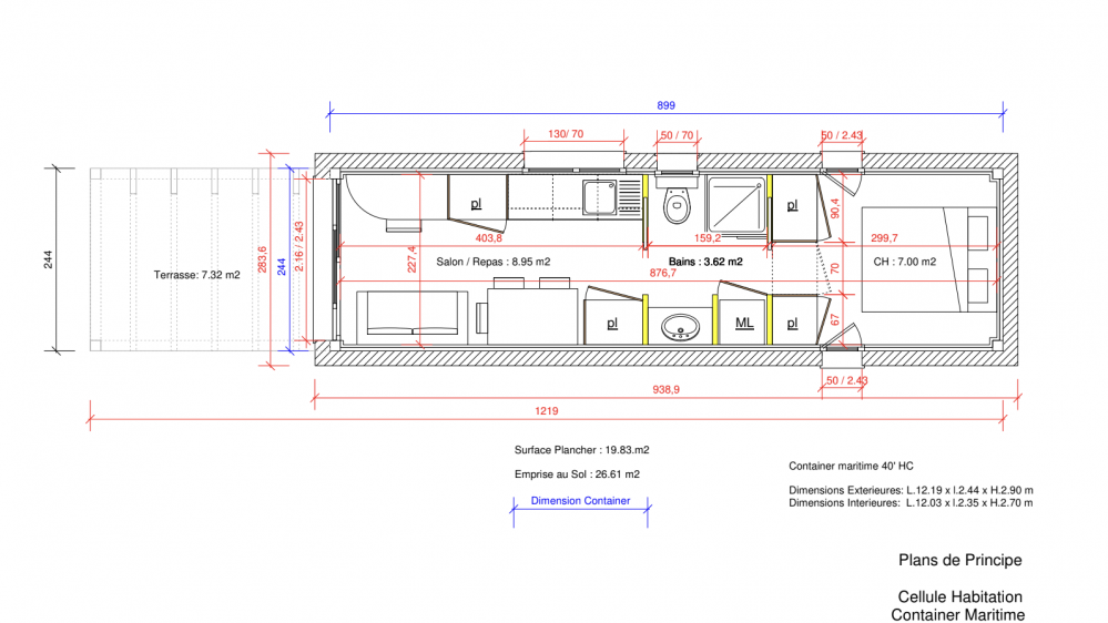
Dimensions
-
Surface extérieure au sol (emprise) : 27m²
-
Surface intérieure habitable : 20m²
- Hauteur sous plafond : 2,70m
-
Toiture : toit plat ou toiture à pans (selon configuration)
Prestation de base
- Dépôt déclaration préalable aux travaux (si < 20m²)
- Menuiseries extérieur
- Isolation (sols, murs, toiture)
- Crépis
- Etanchéité (EPDM toiture + descente)
- Plâtrerie (placo BA13 murs + plafond + bandes + enduit)
- Electricité (armoire électrique)
- Revêtement de sol (stratifié)
Options
- Casquette
- Kitchenette
- Meuble de salle de bain
- Revêtement sol (parquet, stratifié, vinyle, carrelage)
- Revêtement mur (peinture cellulose /fibre ou lambris)
- Toiture végétale
- Chauffage (PAC ou radiateur électrique)
- Terrasse bois
- Fondations
- Raccordement
Nos toitures
Nos casquettes
Les différents choix possibles :
Découvrez les différentes configurations possibles selon vos envies !
Chacun de ces modèles est entièrement personnalisable :
-
Choix du bardage principal : crépis, tasseaux bois, lames bois, viroc gris
-
Choix de la toiture : toit plat, toiture à pans simple, double
-
Choix de la casquette (si toit plat) : simple, double, triple
-
Choix du bardage de la casquette : tasseaux bois ou Viroc gris
Il s’agit de nos modèles de base, mais la taille et les aménagements peuvent être ajustés sur mesure en fonction de votre demande.
💬 Des envies particulières ?
Nous restons ouverts à d’autres formes de personnalisation selon vos besoins.
N’hésitez pas à nous contacter pour échanger sur votre projet ou obtenir des conseils adaptés.
Nos bureaux
31 Rue des Coquelicots
67270 Hochfelden
Nos coordonnées
brice.lucci@immocreative.fr
06 11 33 63 03
Légal
Mentions légales
Politique de confidentialité
© 2025










